
浩景园艺术创意工作室介绍
一、简介
工作室秉持“做人要落落大方,设计要落地可行”的理念,主要从事建筑户外空间景观营造及植物艺术造型相关的教学、科研及社会服务工作。致力于将自然美与艺术美融为一体,结合美学、诗画、园艺等学科和技艺,对户外环境空间进行艺术造型创作,使之成为“无声的诗”、“立体的画”、“凝固的音乐”。从而美化人们的生活、陶冶人们的情操。
二、导师情况
方浩俊,金华职业技术学院环境艺术专业教师,讲师、市政园林工程师,浙江大学风景园林专业硕士。主要研究方向为:建筑室内外环境设计理论及应用。近年来完成厅局级课题2项;市级课题3项;授权发明专利1项,实用新型专利3项。参与编写高等院校“十二五”规划教材《建筑装饰材料》一本;与企业合作完成园林景观工程项目横向课题7项,累计到款63.57万元。
三、工作室成果
项目设计:
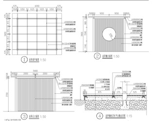
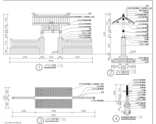
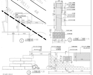
江山市凤林镇茅坂村“诗画风光带”景观设计





金职院师范学院景观改造设计



丽水市遂昌县石门胜境景观设计




比赛:



专利:发明专利1项:

实用新型专利3项:



招生资讯热线:0579-82265235 0579-82265245
成教资讯:0579-82397482 院长信箱